
140㎡現代簡約 | 恬靜怡然的悠悠時光
MODERN · STYLE
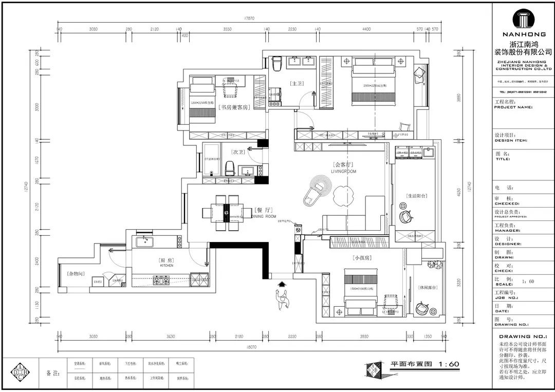
作品前言 本案業主是一對年輕夫婦,父母住在同小區。夫婦二人日常上班忙碌,渴望有一處能讓心靈沉淀的生活空間,因此設計采用大量簡約明朗的線條,將空間進行了合理分隔,色系上也以白和木色為主,讓居室環境變得盡量的簡單、純粹。 戶型方案? 實景呈現 >>玄關 玄關用收納柜和端景有序地鋪墊好入戶節奏,歸家的期待感被緩緩拉長、放大。 端景柜結合長虹玻璃材質,為玄關增添了朦朧、清新又質樸的美,并為客廳做了必要的遮擋。 >>客廳 寬闊明朗的客廳空間,讓心情不自覺變得輕松、舒暢。以白為底色的居室融入了木的溫潤,恰到好處地呈現夫婦二人自在隨性的生活方式。 空間采用以射燈為主光源的無主燈設計,電視背景做開閉有序的收納柜,柜內的隱藏光源烘托柔和氛圍。每個角落自由規劃的插座,也讓便利性滲透整個居室,這種便利性對于業主的生活來說,尤為重要。 沙發背景墻運用木飾面結合木格柵,純凈的自然氣息,為家尋找到舒適的方向。干凈的塊面令視覺變得輕盈通透,隱形門的設計也使空間布局得到高度的統一。 >>餐廳 餐廳設置有多功能餐邊柜,擴充儲物。簡約又有格調的桌椅隨性擺放,角落的綠植成為空間的靈性注腳,安靜地傳達著高級視感。 >>廚衛 廚房原來的層高很低,設計師便利用高低差的扣板吊頂進行了一定的拉伸,使得整體觀感敞亮了不少。深灰色的櫥柜門別具質感,空間在敞亮之余,又有著簡約分明的秩序。 優秀設計所構筑的品質生活,不僅僅是外在呈現美觀,更需要扎根于生活,來塑造實質意義上的體驗感。 >>臥室 臥室延續了輕柔的色彩,構建起舒緩的睡眠空間。床尾設計了桌子與衣柜、電視柜相連,各種收納更加細化,大大提升了空間利用率,看起來也更加流暢、和諧。 —— / 項目信息 / 地址:萬家星城 城市:中國 杭州 戶型:三室兩廳 面積:140㎡ 風格:現代簡約 設計單位:浙江南鴻裝飾 施工單位:浙江南鴻裝飾 - Thanks For Watching -














免費
免費申請戶型規劃
專屬設計師免費1對1全程服務
已經有3782人申請
24小時免費咨詢電話
400-8800-618
你家預算
108080元