
白+原木經典組合,開放式廚房,曲面吊頂...文藝氣質,輕松拿捏!

// 項目信息 //
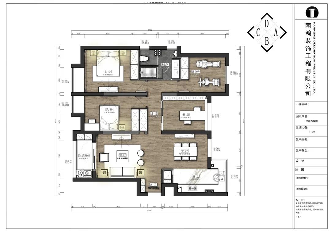
地址 / 豐匯城 戶型 / 三室兩廳 面積 / 117㎡ 風格 / 北歐風格 設計施工 / 浙江南鴻裝飾 導 語 INTRODUCTION 家,會展現一個人內心最真實的樣子。 你喜愛什么,期待什么, 這所有關于美好的想象, 將構成你心目中最理想的居心地。 本案的屋主是幸福的一家三口,他們希望自己的家是溫馨、令人放松的居所,不需要條條框框的限制,能隨心而動。 設計師用白+原木的經典色調為他們構造這個溫情場域,同時打破原戶型中的許多隔閡,創造出更多的互動性。 #設計靈感 我們的設計師與本案的業主,是在去年疫情期間通過老客戶介紹而認識的,前期對接基本都是通過線上溝通方式進行。 結合當時的艱難處境與個人心境,設計師希望通過這套作品來傳達一種對自由,對美好未來的真誠希冀。 戶 型 解 析 HOUSE TYPE ▲戶型圖 ①客廳陽臺考慮到實際需求做成了生活陽臺; ②打掉餐廚之間的墻體,將廚房做成開放式,極大增強空間感; ③將原戶型中的兩個狹小空間合并成一個面積足夠的衛生間,干濕分離的設計更加人性化。 作 品 詳 解 ANALYSIS #客廳 純凈明朗的空間里,溫潤的原木帶來舒緩的感受,魚骨拼的木地板提升顏值。造型輕盈的軟裝家具勾勒簡潔線條感,隨性自在地搭配出一種休閑放松的慢生活節奏。 陽光輕巧地穿透紗簾,灑落進來,在家的這方小天地中,靜靜聆聽時光流淌的聲音。 客廳望向餐廚區域,視覺上沒有任何阻隔,內外空間感都極好。 #過道 公區域通往內臥的過道,使用了時下非常流行的拱形門洞元素,帶著些復古的情調,令人印象深刻。 #餐廳 餐廚一體,開放式空間讓行動更方便的同時,也實現了家人間更高的互動性與參與感。 原木風餐桌椅搭配白色百葉簾,北歐風特有的細膩柔情與文藝氣質在此處漫延開來,扣人心弦。 世間萬物,唯有愛與美食不可辜負。 餐廳靠過道墻面做黑板墻裝飾,孩子充滿童心的繪畫將是這個家中最獨一無二的風景。 #廚房 廚房,墻面鋪貼啞光小白磚,簡潔耐看又易清理,地面的黑白花磚與餐廳形成自然分界,整體淺色的基調讓這塊美食誕生地與餐廳一樣,明朗通透。 #臥室 主臥,白色曲面石膏板吊頂造型獨特,增添趣味,床頭背景省去繁復設計,只用水藍色乳膠漆裝飾留白。高顏值木地板一路通鋪過來,陽光從飄窗透進,照亮這方干凈純粹的居心之所。 次臥,是給正在讀小學的兒子的房間。清爽的藍色與平實溫厚的原木色一道,為孩子建構出溫暖而明凈的空間氛圍。 #衛生間 原戶型中兩個比較小的空間合成了現在這個衛生間,考慮到實際使用需求而增加了小便斗,雙臺盆提升日常使用效率。

















免費
免費申請戶型規劃
專屬設計師免費1對1全程服務
已經有3782人申請
24小時免費咨詢電話
400-8800-618
你家預算
108080元